Map

Новостройка в Святом Власе – качество, комфорт и отличное расположение

(0)

Святой Влас, Бургас 2,479 views окт 28, 2025

€87,500 Продажа

Обзор
Категория Апартаменты
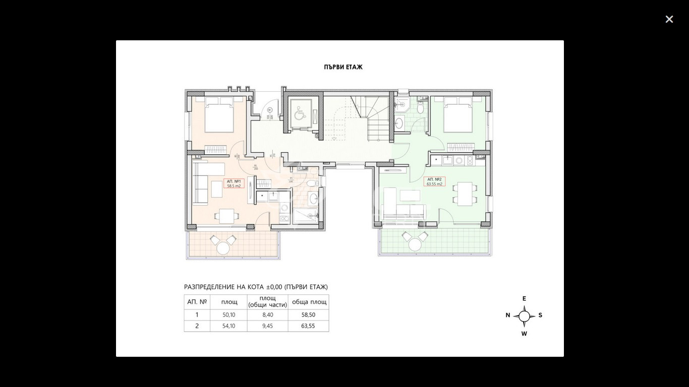
Площадь 58 m²
Спальни 1
Ванных комнат 1
Этаж 4
Стоимость €87,500
Ссылка Число: ES-FairV
Этаж 1
Описание

Новостройка в Святом Власе – качество, комфорт и отличное расположение

Представляем новый бутик-проект жилого дома, расположенный в тихом и востребованном районе города Святой Влас. Проект сочетает в себе современный дизайн, высокое качество строительства и комфортную среду для проживания.

Святой Влас известен своим уникальным микроклиматом, который образуется благодаря сочетанию морского и горного воздуха. Это обеспечивает исключительно чистый воздух и благоприятные климатические условия, делая район одним из самых привлекательных на болгарском Черноморском побережье.

Характеристики здания:
    •    Четыре этажа, по три квартиры на каждом этаже – ограниченное количество жилья, обеспечивающее тишину и уединение
    •    Общее количество квартир: 10
    •    Срок завершения строительства: март 2027 года
    •    Лифт – современный и бесшумный
    •    Парковочные места для удобства жителей
    •    Фасад и общие части выполнены из высококачественных материалов, создающих ощущение роскоши и стиля
    •    Энергоэффективность – современная теплоизоляция и окна высокого класса

Преимущества расположения:
    •    Находится в спокойном и благоустроенном районе Святого Власа
    •    Близость к морю и пешая доступность до пляжа
    •    Рядом магазины, рестораны и удобства для круглогодичного проживания
    •    Отличная транспортная доступность
    •    Район с высоким инвестиционным потенциалом

Этот проект предлагает комфортный образ жизни в современном доме с ограниченным количеством квартир, обеспечивающем уютную и престижную атмосферу. Подходит как для постоянного проживания, так и для отдыха или инвестиций.


Удобства

Парковка

Терраса

Сад

Домашние животные разрешены

Лифт


Удобства района

Больница - 1км

Супермаркет - 500м

Школа - 500м

Аптека - 1км

Аэропорт - 30км

Автобусная остановка - 100м

Пляж - 500m

Банк - 1км



Местоположение

Святой Влас



Share this property:

Написать обзор

Пожалуйста, войдите, чтобы написать отзыв!




Отправьте запрос


Related properties